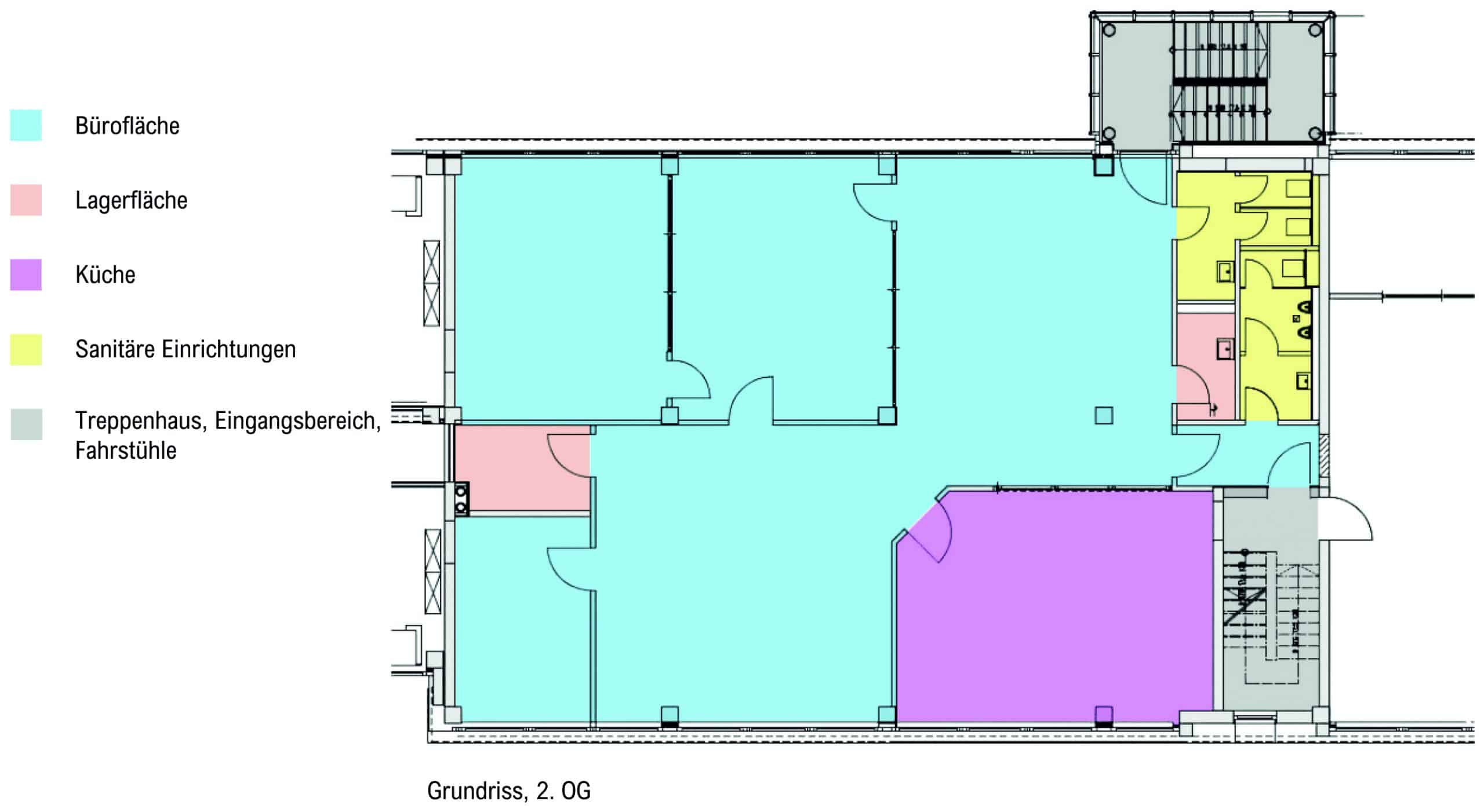
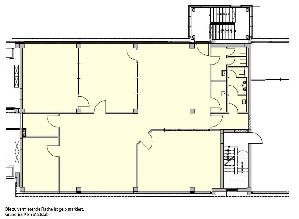
Exklusive Bürofläche mit Dachterrasse in Bogenhausen/Zamdorf – 255 m²

Exklusive Bürofläche mit Dachterrasse in Bogenhausen/Zamdorf – 255 m²

Gesamtmiete brutto:

5.128,31 €

Gesamtfläche:

ca. 255 m²

Gebäudenutzung

Büro- und Verwaltungsflächen

Nutzungsart

gewerblich

Zustand

Baujahr

1972

Sanierung

2005

Etage

2.OG

Etagenanzahl Gebäude

3

Fläche

ca. 255 m²

Norm der Berechnung

Stellplatz und -art

nach Absprache im Außenbereich direkt vor dem Eingang

Bezugstermin

nach Vereinbarung

Energieausweis

nach Vereinbarung

Kennwert

vorhanden

Strombedarfskennwert

Heizungsbedarfskennwert

Heizungsart

Heizöl

Typ

Sonstiges

Qualität

Modern und hochwertig

Bodenbelag

nach Absprache, derzeit Teppich

Küche

Teeküche kann übernommen werden

WC-Anlage

vorhanden

Lagerfläche

Sonnenschutz

elektrisch bedienbare Jalousie an der Außenseite

Klimatisierung

Strom- / EDV-Versorgung

vorhanden, Versorgung über Brüstungskanäle

TV-Verkabelung

Besonderheit

exklusive Nutzung der sonnigen Dachterrasse

Sonstiges

individuelle Raumgestaltung nach Absprache

Kaltmiete netto

3672,00 €

+ Miete Stellplatz netto

+ Betriebskostenvorauszahlung

637,50 €

+ Heizkostenvorauszahlung

Kaltmiete brutto

Kaltmiete brutto inkl. Stellplätze

Stellplätze optional

Gesamtmiete netto

4.309,50 €

MwSt. 19%

818,81 €

Gesamtmiete brutto

5.128,31 €

Mietentwicklung

nach Vereinbarung

Kaution

3-6 Monatsmieten

Kautionsart

Vertragsdauer

nach Vereinbarung

Sonstiges

Wissenswertes

Exklusive Bürofläche mit Dachterrasse in Bogenhausen/ Zamdorf

 

Das Büro- und Verwaltungsgebäude befindet sich im Stadtteil Bogenhausen / Zamdorf innerhalb eines Gewerbegebiets. In unmittelbarer Nachbarschaft ist unter anderem der Verlag der Süddeutschen Zeitung angesiedelt.

 

Das Gebäude hat eine optimale Anbindung an die Verkehrswege durch seine Lage direkt an der Autobahn A94 (München – Passau). Die öffentlichen Verkehrsmittel, einschließlich Bus, Tram sowie die S-Bahn-Station Berg am Laim, sind in wenigen Gehminuten erreichbar.

 

Das Mietobjekt selbst liegt in einer ruhigen und zurückgesetzten Umgebung.

Wir helfen Ihnen gerne weiter!

Die erhobenen personenbezogenen Daten werden zum Zweck der Bearbeitung Ihrer Anfrage genutzt. 
Weitere Informationen zur Verarbeitung Ihrer Daten finden Sie in unserer Datenschutzerklärung.

Hier haben Sie die Möglichkeit, Ihre ausgefüllte Mieter-Selbstauskunft oder die Vormerkung 
für eine Wohnung hochzuladen

Bitte beachten Sie, dass nur die Dateiformate PDF, JPG, PNG und ZIP hochgeladen werden können. Die Bewerbungsunterlagen sollten nicht größer als 10MB sein.

Die mit einem Sternchen (*) markierten Felder sind Pflichtfelder.

Technischer Notdienst

Vielen Dank!
Anfrage erfolgreich gesendet!

Wir werden uns schnellstmoglich bei ihnen melden.